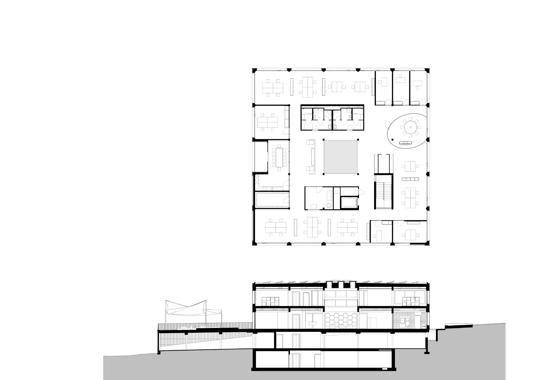
Maître de l’ouvrage : Banque Raiffeisen Neuchâtel et Vallées société coopérative Lieu : Cernier Projet et réalisation : 2023-2026 SPBU : 1’466 m2 Volume : 6’428 m3